View ::
Classic
|
Mobile
For Sale
Around Me
Saved
Contact Us
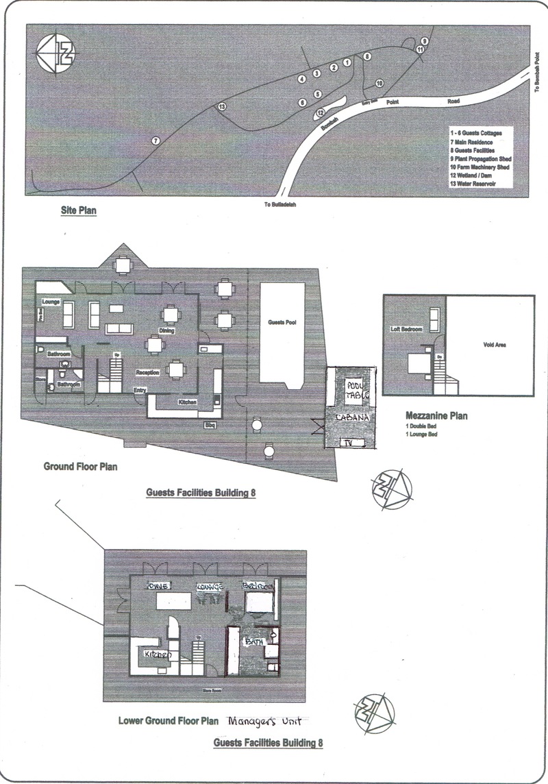
949-969 Bombah Point Road, BOMBAH POINT,
Mid North Coast, NSW - SOLD
Back
Next
>